BODEGAS INDUSTRIALES VELAVENTO
CÚCUTA, COLOMBIA
Se proyecta construir en predios individualizados independientes dos bodegas pareadas de triple altura, con uso industrial y comercial al extremo norte del proyecto Velavento Empresarial de desarrollo futuro, ubicadas estratégicamente al lado del Aeropuerto Internacional Camilo Daza en la ciudad capital de Cúcuta, frontera colombo-venezolana. Las bodegas L1 y L2 de triple altura, tienen acceso para vehículos de carga pesada de gran longitud, con frente hacia la Avenida 2ª, vía urbana principal de entrada actual al barrio Aeropuerto y sus patios interiores colindan con las vías internas privadas del Aeropuerto Internacional Camilo Daza de Cúcuta.
Las imágenes son representaciones gráficas del proyecto y las áreas presentadas son aproximadas, pueden tener variaciones por procesos constructivos, están basadas en planos en proceso, sujetos a cambios estructurales y arquitectónicos.
Esquema plano arquitectónico
La bodega industrial L1 de triple altura, se construirá en un predio al norte de Velavento Empresarial, para uso industrial o local comercial de grandes superficies, con acceso para vehículos de carga pesada de gran longitud, desde la Avenida 2ª vía principal urbana, tiene también un muelle de descargue de mercancías para camiones de máximo 7,50 mts de largo y dos estacionamientos para visitantes y propietarios incluyendo el de personas de movilidad reducida. Con salón amplio de triple altura y patio posterior descubierto colindando con el aeropuerto internacional Camilo Daza de Cúcuta, salón vitrina de recepción de fachada hacia la avenida 2a, baño accesible y poceta de aseo con escalera de comunicación a pisos superiores, en segundo piso salón con vacío a zona de descargue de acceso a la bodega y ventana de fachada, baño y mesón café y en tercer piso salón amplio de oficina abierta con vacío a bodega, baño, mesón café y con puerta ventana en vidrio hacia terraza descubierta con vacío a la avenida 2.
Esquemas planos arquitectónicos bodega industrial L1
- Área Construida: 540,53 m2
- Área Terreno: 596,81 m2
- Frente 14,05 metros
- Niveles: 3 pisos
- Salones: 3
- Salón bodega triple altura: 1
- Estacionamientos: 2
- Baños: 3
- Patio: 1
- Terraza descubierta: 1
- Zona descargue: 1
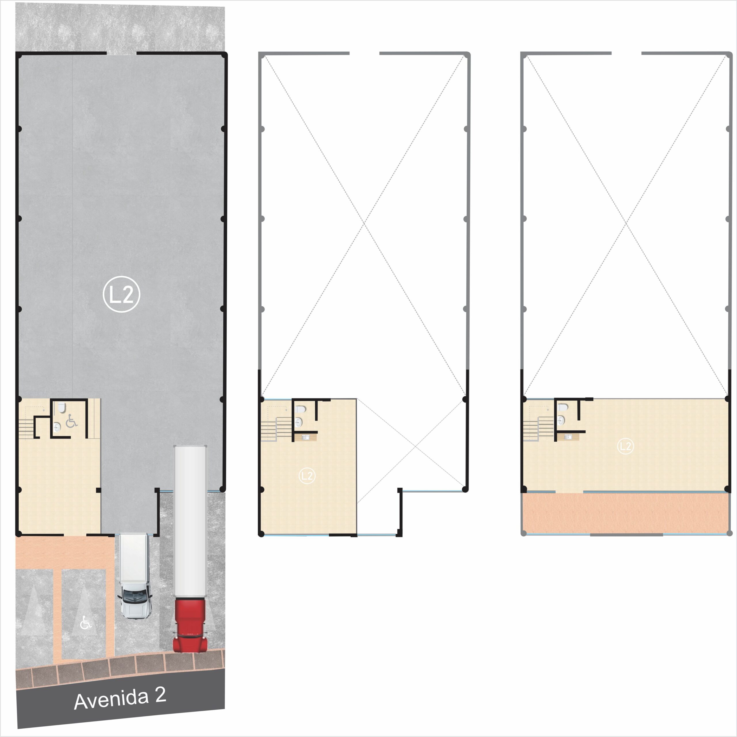
La bodega industrial L2 de triple altura, se construirá en uno de los predios al norte de Velavento Empresarial, para uso industrial o local comercial de grandes superficies, con acceso para vehículos de carga pesada de gran longitud, desde la Avenida 2ª vía principal urbana, tiene también un muelle de descargue de mercancías para camiones de máximo 7,50 mts de largo y dos estacionamientos para visitantes y propietarios incluyendo el de personas de movilidad reducida. Con salón amplio de triple altura y patio posterior descubierto colindando con el aeropuerto internacional Camilo Daza de Cúcuta, salón vitrina de recepción de fachada hacia la avenida 2a, baño accesible y poceta de aseo con escalera de comunicación a pisos superiores, en segundo piso salón con vacío a zona de descargue de acceso a la bodega y ventana de fachada, baño y mesón café y en tercer piso salón amplio de oficina abierta con vacío a bodega, baño, mesón café y con puerta ventana en vidrio hacia terraza descubierta con vacío a la avenida 2.
Esquemas planos arquitectónicos bodega industrial L2
- Área Construida: 540,53 m2
- Área Terreno: 610,01 m2
- Frente 14,09 metros
- Niveles: 3 pisos
- Salones: 3
- Salón Bodega triple altura: 1
- Estacionamientos: 2
- Baños: 3
- Patio: 1
- Terraza descubierta: 1
- Zona descargue: 1
Lote con área de cerramiento de 1.424,38 m2 en el costado occidental de un predio medianero para futuro desarrollo en el centro de Velavento Empresarial, con una edificación existente allí levantada y debidamente reconocida, identificada con el número B101 y con un área construida de 208,47 m2. El lindero occidental del predio de 51,74 mts colinda con vía interna del predio del Aeropuerto Internacional Camilo Daza de Cúcuta.
La entrada principal por vía privada comunal de 5 mts de ancho a 20 mt de la Avenida 2, vía urbana principal de acceso al barrio Aeropuerto y otro acceso vehicular en su costado nor-oriental donde se encuentra la zona de descargue provisional del Conjunto Comercial Velavento, proyecto de desarrollo futuro del Centro Empresarial Velavento. En el predio funcionó la fábrica de prefabricados denominada Concretal P.C. y actualmente cuenta con sus patios adoquinados y contiene las máquinas vibroprocesadoras de alto rendimiento con su equipo complementario.
Esquemas planos arquitectónicos Bodega B101
- Área cerramiento lote: 1.424,38 m2
- Área Construida: 208,47 m2
- Lindero occidental: 51,74 mts
- Niveles: 1 piso
- Salones bodega: 2
- Habitación: 1
- Baños: 2
- Cocina: 1
Ubicación
Los dos predios medianeros donde se construirán las bodegas industriales y comerciales denominadas L1 y L2 de la primera etapa están ubicadas en el extremo norte de Velavento Empresarial en las direcciones Avenida 2 #0-227 LT UNO 1 y la Avenida 2 #0-213 LT DOS 2 Barrio Aeropuerto en Cúcuta, su lindero occidental colinda con las vías internas del Aeropuerto Internacional.






